
建物2026/02
280万円 約34坪 浜田市港町 売家
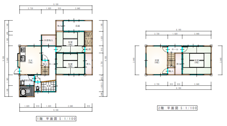
物件詳細情報
| 物件番号 | 港町・売家 |
|---|---|
| 種別 | 昭和49年4月築 |
| 価格 | 280万円 |
| 土地面積 | 113.35㎡(34.28坪) |
| 建物面積 | 80.28㎡(24.28坪) |
| 坪単価 | |
| 校区 | 原井小学校(徒歩10分・750m)
第二中学校(徒歩36分・2500m) |
| 交通 | 石見交通バス・漁民団地前(徒歩2分・150m) |
| 地目 | 宅地 |
| 都市計画 | 浜田市都市計画区域・区域区分非設定 |
| 建・容積 | 60%・200% |
| 用途地域 | 第1種住居地域 |
| 借地期間/地代 | |
| 私道面積 | |
| 開発許可 | |
| 土地権利/借地種類 | 所有権 |
| 国土法 | |
|---|---|
| 接道状況詳細 | 浜田市道に接道 |
| 地勢 | |
| 傾斜地面積 | |
| 最適用途 | |
| 現況 | 建物有 |
| 条件等 | |
| 再建築 | 可能 |
| 土地形状 | |
| 敷地延長 | |
| 付帯権利 | |
| 引渡 | 即時 |
| 設備 | |
| 備考1 | 建物を解体して新築も可能です。お気軽にご相談ください。 |
| 情報更新日 | – |
| 取引形態 | 仲介 |


