
建物2025/11
3,500万円 約31坪 浜田市周布町 売家
物件詳細情報
| 物件番号 | 周布町 売家 |
|---|---|
| 種別 | 売家 |
| 価格 | 3,500万円 |
| 土地面積 | 233.74㎡ |
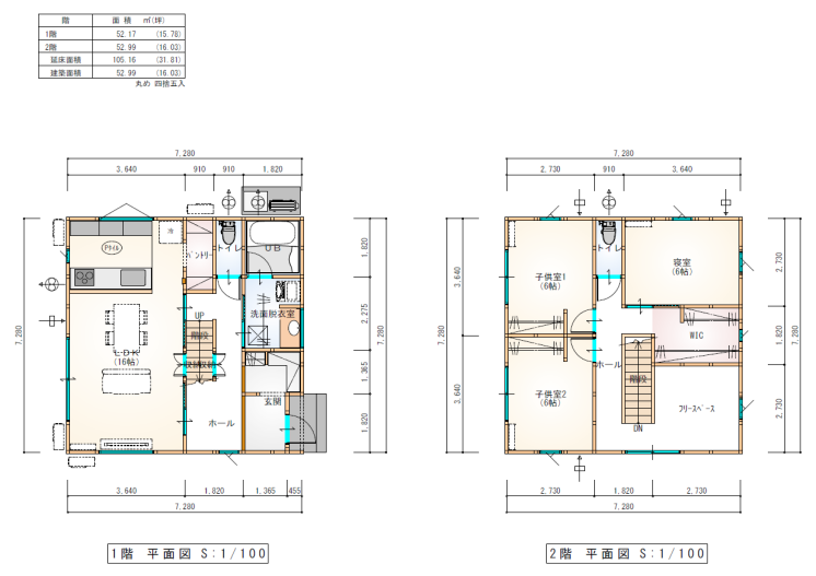
| 建物面積 | 105.16㎡(1階52.17㎡・2階52.99㎡) |
| 坪単価 | |
| 校区 | 周布小学校(徒歩13分・950m)
第三中学校(徒歩24分・1600m) |
| 交通 | JR周布駅(徒歩20分・1500m)
石見交通バス:春日団地(徒歩7分・500m) |
| 地目 | 宅地 |
| 都市計画 | 区域区分非設定 |
| 建・容積 | 60%・200% |
| 用途地域 | 準工業地域 |
| 借地期間/地代 | |
| 私道面積 | |
| 開発許可 | |
| 土地権利/借地種類 | 所有権 |
| 国土法 | |
|---|---|
| 接道状況詳細 | 東面・幅員6m |
| 地勢 | 平坦 |
| 傾斜地面積 | |
| 最適用途 | 住宅用地 |
| 現況 | 住宅 |
| 条件等 | |
| 再建築 | 可 |
| 土地形状 | |
| 敷地延長 | |
| 付帯権利 | |
| 引渡 | 要相談 |
| 設備 | キッチン、お風呂、洗面、トイレ(1,2階) |
| 備考1 | 竣工:令和6年5月新築 |
| 情報更新日 | – |
| 取引形態 | 仲介 |






























