
建物2025/11
2,580万円 約34坪 江津市嘉久志町 売家
物件詳細情報
| 物件番号 | 嘉久志町 売家 |
|---|---|
| 種別 | 売家 |
| 価格 | 2,580万円 |
| 土地面積 | 224.25㎡ |
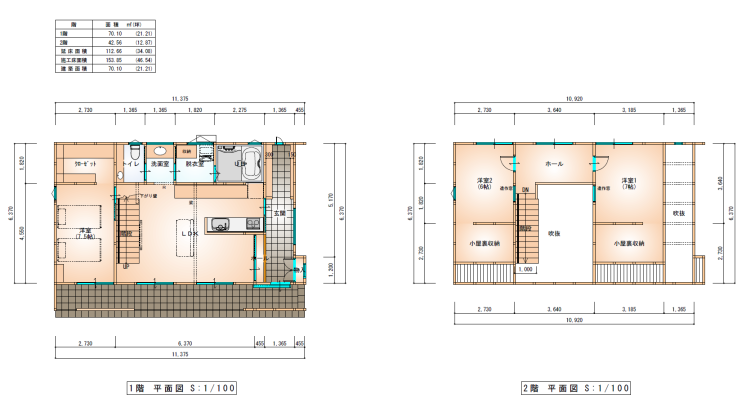
| 建物面積 | 112.66㎡ |
| 坪単価 | |
| 校区 | 高角小学校(徒歩21分・1,400m)
江津中学校(徒歩8分・600m) |
| 交通 | JR江津駅(徒歩19分・1,400m) 石見交通バス:嘉久志(徒歩11分・750m) |
| 地目 | 宅地 |
| 都市計画 | 区域区分非設定 |
| 建・容積 | 60%・200% |
| 用途地域 | 第一種中高層住居専用地域 |
| 借地期間/地代 | |
| 私道面積 | |
| 開発許可 | |
| 土地権利/借地種類 | 所有権 |
| 国土法 | |
|---|---|
| 接道状況詳細 | 北東面・幅員6m |
| 地勢 | 平坦 |
| 傾斜地面積 | |
| 最適用途 | 住宅用地 |
| 現況 | 住宅 |
| 条件等 | |
| 再建築 | 可 |
| 土地形状 | |
| 敷地延長 | |
| 付帯権利 | |
| 引渡 | 即時 |
| 設備 | |
| 備考1 | |
| 情報更新日 | – |
| 取引形態 | 仲介 |




































